TRAUMLAGE ! FAMILIEN-FERIENWOHNUNG !! Zweitwohnsitz!! Apartments direkt an der Skipiste – Hochrindl

Objektnummer 1190003

Postleitzahl: 9571

Stadt: Hochrindl

Objekt­beschreibung

Beschreibung

KÄRNTEN / HOCHRINDL

IHR FERIENDOMIZIL IN TRAUMLAGE - DIREKT AN DER SKIPISTE !

Seltene ZWEITWOHNSITZ Widmung

Willkommen in Ihrem neuen Zuhause – einer charmanten Ferienwohnung in der malerischen Region Hochrindl, Kärnten. Genießen Sie die Vorzüge dieser Wohnung und lassen Sie sich von der Schönheit der Natur Kärntens verzaubern. 

In einzigartiger Lage, unmittelbar neben der Skipiste, liegt das Ferienhaus Karoline. Zum Verkauf stehen 5 Apartments mit Wohnflächen von ca. 39 m² bis 95 m². Fast jede Einheit verfügt entweder über eine Terrasse, einen Balkon oder einen Gartenanteil. 

Die Wohnungen werden im Ist-Zustand verkauft und sind als Zweitwohnsitz gewidmet – perfekt für alle, die ein eigenes Feriendomizil in den Bergen suchen.

Und natürlich können Sie auch noch in der freien Zeit ihre Wohnung vermieten und noch zusätzlich Einnahmen lukrieren. 

DIE FAKTEN:

* Einheiten: 5 Ferienappartments
* Wohnflächen: ca. 42-94 m²
* Widmung: Bauland-Kurgebiet-Sonderwidmung-Freizeitwohnsitz
* Freifläche: Balkon/Terrasse oder Gartenanteil
* Erreichbarkeit: das ganze Jahr
* Nutzung als Zweitwohnsitz
* Kurzzeitvermietung möglich 
* Ski-in / Ski-out – direkt bei der Piste
* Herrliche Aussicht
* Top-Lage mitten im Skigebiet Hochrindl
* Wohnungseigentum

 

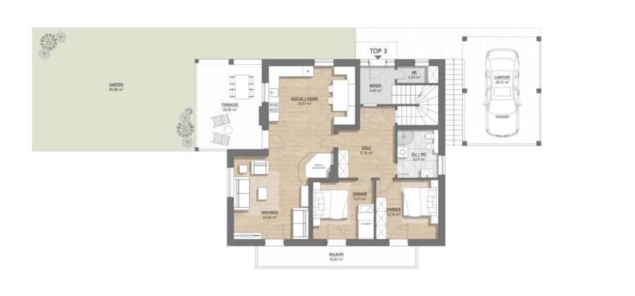
DIE TOP 3

95,75 m2 Wohnfläche, 3 Zimmer, großer überdachter Terrasse, südseitig ausgerichteter Balkon, Gartenanteil, 1 KFZ-Stellplatz.

Diese großzügige 3-Zimmer-Wohnung mit ca. 95,75 m² Wohnfläche erstreckt sich über das gesamte Geschoss und überzeugt durch ihre ideale Raumaufteilung und der traumhaften Lage direkt neben der Piste.

Das Herzstück der Wohnung bildet der ca. 47 m² große Wohn- und Essbereich mit voll ausgestatteter Küche, gemütlichem Sitzbereich und Kachelofen. Von hier aus gelangen Sie sowohl auf den Balkon als auch auf die südseitige, ca. 23 m² große, überdachte Terrasse – perfekt zum Entspannen und Genießen.

Die beiden Schlafzimmer bieten ausreichend Platz für Familie und Gäste und sind derzeit mit zwei Doppelbetten sowie einem Stockbett eingerichtet. Somit finden bis zu 4 Erwachsene und 2 Kinder bequem Platz. Der ca. 10 m² große Balkon ist sowohl vom Wohnzimmer als auch von den Schlafzimmern zugänglich.

Das großzügige Badezimmer ist mit Dusche, Waschtisch, Bidet und WC ausgestattet.

Ein eigener Gartenanteil sowie ein Carport runden dieses attraktive Angebot ab.

Raumaufteilung:

* Wohn-Essbereich mit Küchenzeile, Kachelofen
* 1 Schlafzimmer (derzeit mit Doppelbett und Stockbett ausgestattet)
* 1 Schlafzimmer (mit Doppelbett)
* 1 Badezimmer mit Dusche, Waschtisch, Bidet und Wc
* Südwestseitig ausgerichtete Terrasse
* 10 m² Balkon (Süd)

Die Wohnung wird im Ist-Zustand übergeben. Auf Wunsch können auch gewisse Sanierungsmaßnahmen - gegen Aufpreis - vom Verkäufer übernommen werden.

Ausstattung: Öl Zentralheizung, Kunststofffenster, teilweise Parkett, teilweise Laminatboden. 

Weitere Informationen finden Sie auf unserer Projekt Homepage: https://www.ferienwohnunghochrindl.at

 

Freizeit auf der Hochrindl

Die Lage dieser Immobilie ist einfach unschlagbar.
DIREKT BEI DER SKIPISTE!

Hochrindl, bekannt für seine beeindruckende Natur und die Vielzahl an Freizeitmöglichkeiten, ist der perfekte Ort, um dem Alltag zu entfliehen. Die Umgebung bietet Ihnen und Ihren Gästen nicht nur Ruhe und Erholung, sondern auch zahlreiche Aktivitäten, sei es im Sommer beim Wandern und Radfahren oder im Winter beim Skifahren und Snowboarden. Die Hochrindl ist malerisch umrahmt von den Kärntner Nockbergen. Die Hochrindl (1617 m) ist ein Alpenpass sowie ein Alm- und Skigebiet in den Nockbergen in Kärnten zwischen Ebene Reichenau und Sirnitz. Das zahlreiche Angebot finden Sie hier: https://www.hochrindl.at [/www.hochrindl.at]

 

Lage / Anfahrt

Die Anfahrt erfolgt meist über die B93 (Gurktal Straße), mit einem Abzweiger zur Hochrindl-Landesstraße (L65), die direkt ins Almgebiet führt. 

Mit dem Auto

* Über die A2 bis nach Klagenfurt. Dann Feldkirchen – Sirnitz/Albeck – Hochrindl.
* Über die Semmering Schnellstraße bis Friesach, weiter nach Sirnitz/Albeck – Hochrindl.
* Über die A11 bis Villach. Dann Feldkirchen – Sirnitz/Albeck – Hochrindl.
* Über die A11 bis zur Abfahrt Spittal – Radenthein – Bad Kleinkirchheim – Ebene Reichenau – Hochrindl.

Ob für die eigene Nutzung oder als Anlage – diese Apartments verbinden Ihre Auszeit mit einer außergewöhnlichen Lage inmitten der Kärntner Bergwelt.

Vereinbaren Sie noch heute einen Besichtigungstermin und lassen Sie sich von der einzigartigen Atmosphäre dieser Freizeitimmobilie verzaubern. 

Wir freuen uns auf Ihre Anfrage und stehen für Besichtigungen vor Ort jederzeit gerne zur Verfügung.

 

Hinweis gemäß Energieausweisvorlagegesetz: Ein Energieausweis wurde vom Eigentümer bzw. Verkäufer, nach unserer Aufklärung über die generell geltende Vorlagepflicht, sowie Aufforderung zu seiner Erstellung noch nicht vorgelegt. Daher gilt zumindest eine dem Alter und der Art des Gebäudes entsprechende Gesamtenergieeffizienz als vereinbart. Wir übernehmen keinerlei Gewähr oder Haftung für die tatsächliche Energieeffizienz der angebotenen Immobilie.

Infrastruktur / Entfernungen

Kinder & Schulen
Schule <6.500m Nahversorgung Supermarkt <250m Sonstige Geldautomat <6.000m Bank <6.000m Post <8.000m Verkehr Bus <250m Angaben Entfernung Luftlinie / Quelle: OpenStreetMap

Lage

Entdecken Sie Ihre Oase der Ruhe in Hochrindl! Diese charmante Ferienwohnung am Steingartenweg bietet eine optimale Süd-West Ausrichtung, die Ihnen den ganzen Tag über Sonnenlicht schenkt. Genießen Sie die idyllische Umgebung und die frische Bergluft. In unmittelbarer Nähe finden Sie einen kleine Supermarkt und 3 Gaststätten für Ihre täglichen Bedürfnisse sowie eine Bushaltestelle für einfache Erreichbarkeit. Ideal für Erholungssuchende und Naturliebhaber!

Eckdaten

  • Objekt ID
    1190003
  • Objekttypen
    Ferienimmobilie, Ferienwohnung, Wohnung
  • Adresse
    9571 Hochrindl
    Kärnten
  • Etage
    0
  • Wohnfläche ca.
    96 m²
  • Grund­stücks­fläche ca.
    81 m²
  • Balkon-/Terrassen­fläche ca.
    34 m²
  • Gartenfläche ca.
    95 m²
  • Zimmer
    3
  • Badezimmer
    1
  • Separate WC
    1
  • Balkone
    1
  • Terrassen
    1
  • Heizart
    Ölheizung, Zentralheizung, Etagenheizung
  • Baujahr
    1995
  • Zustand
    gepflegt
  • Erschließung
    vollerschlossen
  • Ausbaustufe
    Schlüsselfertig mit Keller
  • Verfügbar ab
    Sofort
  • Stellplatz:
    1 Stellplatz
  • Kaufpreis pro m²
    3.842,11 EUR
  • Kaufpreis brutto
    365.000,00 EUR
  • Monatliche Kosten netto
    275,00 EUR
  • Monatliche Kosten brutto
    275,00 EUR
  • Sonstige Kosten netto
    95,00 EUR
  • Betriebskosten (netto)
    180,00 EUR
  • Kaufpreis
    365.000 EUR

Ausstattung / Merkmale

  • Als Ferienimmobilie geeignet
  • Balkon
  • Dusche
  • Fertigparkettboden
  • Fliesenboden
  • Garten
  • Laminatboden
  • Neubau
  • Offene Küche
  • Satteldach
  • Schlüsselfertig mit Keller
  • Separates WC
  • Terrasse

Die dargestellte Position der Immobilie ist nur eine ungefähre Angabe.

Ihr R&P Ansprechpartner

Herr Mag.(FH) Torsten Schmögl
Immobilienmaklerin

Direktanfrage

 SSL-verschlüsselt

Ihr Kontakt zur
Wunschimmobilie

  • Immobilienvermittlung
  • Immobilienentwicklung
  • Baumanagement
Rainer & Partner Immobilien
Strozzigasse 2/DG, 1080 Wien
Immobiliendaten-Import und Darstellung für WordPress: WP-ImmoMakler®