Drucken

Generalsanierte Eigentumswohnung auf drei Ebenen mit zwei Terrassen – Gegenüber Sofiensäle

https://www.rpimmo.at/immobilien/wohnung-maisonettewohnung-in-wien-kaufen-1624300187/

Eckdaten

  • Objekt ID
    1624/300187
  • Objekttypen
    Maisonettewohnung, Wohnung
  • Adresse
    (Sofiensäle)
    1030 Wien
    Wien
  • Etage
    8
  • Etagenanzahl im Haus
    10
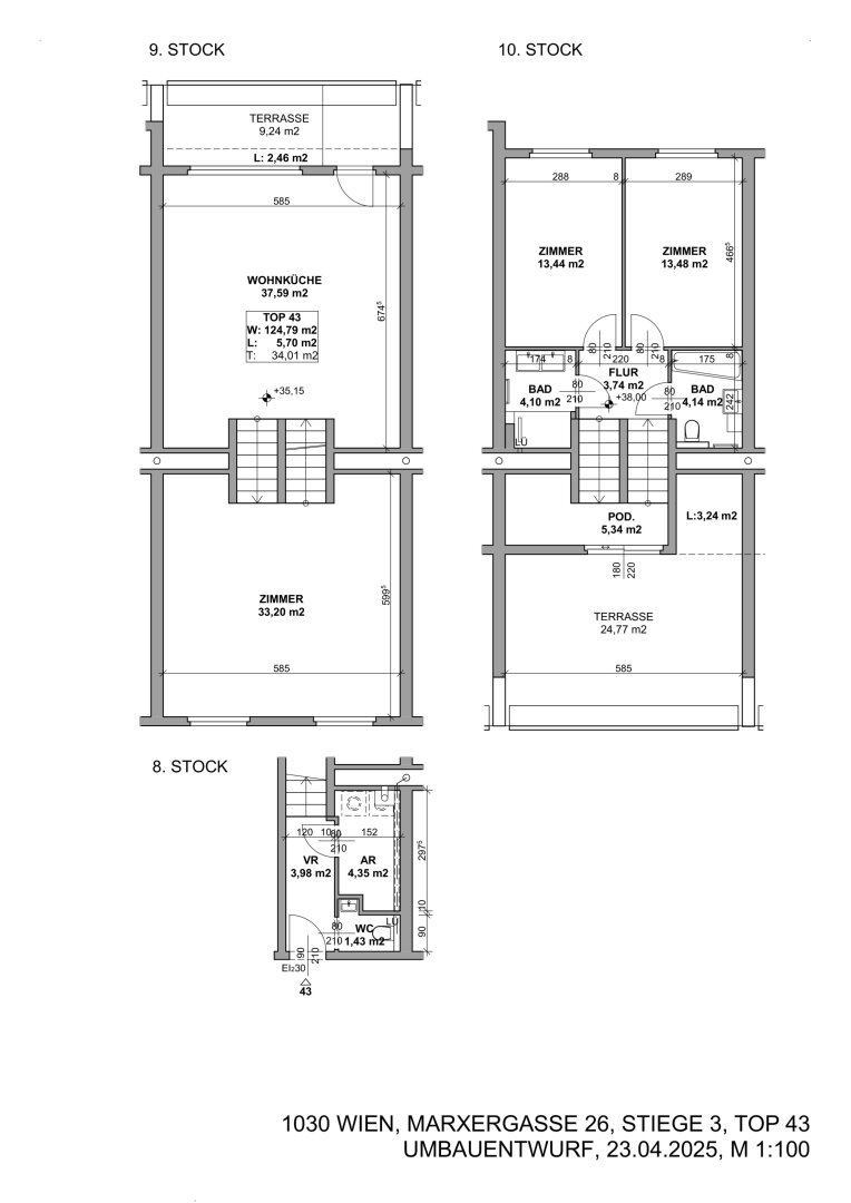
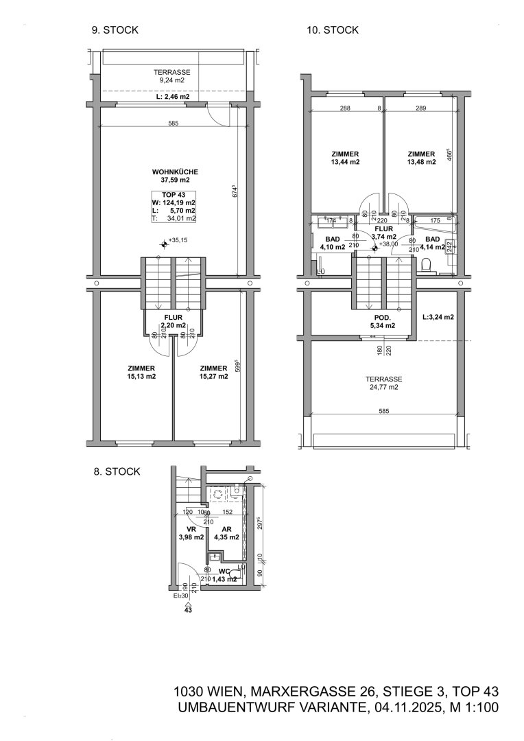
  • Wohnfläche ca.
    125 m²
  • Balkon-/Terrassen­fläche ca.
    40 m²
  • Zimmer
    4
  • Badezimmer
    2
  • Separate WC
    2
  • Loggias
    1
  • Terrassen
    2
  • Heizart
    Etagenheizung, Fernwärme
  • Baujahr
    1980
  • Letzte Modernisierung
    2025
  • Zustand
    Erstbezug
  • HWB-Wert
    53.7
  • HWB-Klasse
    C
  • fGEE-Wert
    1.99
  • fGEE-Klasse
    D
  • Verfügbar ab
    sofort
  • Garage:
    1 Stellplatz
  • Käufer­provision
    3% des Kaufpreises zzgl. 20% USt. inkl. MwSt.
  • Kaufpreis brutto
    1.085.000,00 EUR
  • Monatliche Kosten netto
    470,36 EUR
  • Monatliche Kosten brutto
    495,90 EUR
  • Sonstige Kosten netto
    245,71 EUR
  • Sonstige Preisangaben
    Gerne können Sie auch einen Autoabstellplatz erwerben - Kaufpreis € 37.000,--.
  • Betriebskosten (netto)
    224,65 EUR zzgl. USt.: 22.47 EUR
  • Kaufpreis
    1.085.000 EUR

Ausstattung / Merkmale

  • Abstellraum
  • Badewanne
  • Dusche
  • Einbauküche
  • Fliesenboden
  • Gäste-WC
  • Kabel-/Sat-TV
  • Loggia
  • Neubau
  • Parkettboden
  • Personenaufzug
  • Sauna
  • Separates WC
  • Teeküche
  • Terrasse
  • Tiefgarage
  • Wasch-/Trockenraum

Objekt­beschreibung

Beschreibung

Die Wohnung wurde generalsaniert und ist bezugsfertig.

Es befinden sich folgende Räumlichkeiten im Haus:

* Hobbyraum,
* Kinderwagen- und Fahrradabstellraum
* sowie eine allgemeine Sauna.

 

Ausstattung:

* alle Räume sind zentral begehbar
* Parkettboden in den Wohnräumen
* Fliesen in den Nassräumen
* Einbauküche

Aufteilung:

* Wohnbereich mit Zugang zur Terrasse
* Küche mit Einbauküche inkl. Geräte
* Möglichkeit von zwei auf vier Schlafzimmern ist baulich vorbereitet
* zentraler Vorraum
* Abstellraum
* ein Bad mit Badewanne, Waschbecken und WC inkl. Badezimmermöbel
* ein Bad mit Dusche und Doppelwaschbecken inkl. Badezimmermöbel
* ein WC mit Waschbecken inkl. Unterschrank

Gerne können Sie auch einen Autoabstellplatz erwerben - Kaufpreis € 37.000,--.

Bei einer etwaigen Vermietung der Wohnung hat die Mietzinsbildung nach WGG zu erfolgen (keine freie Mietzinsvereinbarung).

Wir weisen darauf hin, dass zwischen dem Vermittler und dem zu vermittelnden Dritten ein familiäres oder wirtschaftliches Naheverhältnis besteht.

Der Vermittler ist als Doppelmakler tätig.

Infrastruktur / Entfernungen

Gesundheit
Arzt <500m Apotheke <500m Klinik <1.000m Krankenhaus <500m Kinder & Schulen Schule <500m Kindergarten <500m Universität <500m Höhere Schule <1.000m Nahversorgung Supermarkt <500m Bäckerei <500m Einkaufszentrum <500m Sonstige Geldautomat <500m Bank <500m Post <500m Polizei <500m Verkehr Bus <500m U-Bahn <500m Straßenbahn <500m Bahnhof <500m Autobahnanschluss <2.500m Angaben Entfernung Luftlinie / Quelle: OpenStreetMap

Sonstige Informationen

IHRE SICHERHEIT IST UNS EIN ANLIEGEN!

Die mit der Errichtung des Kaufvertrages in gundbuchsfähiger Form und die mit der grundbücherlichen Durchführung verbundenen Kosten und Gebühren, wie insbesondere

* Grunderwerbsteuer - 3,5% des Kaufpreises
* Eintragungsgebühr - 1,1% des Kaufpreises
* Vertragserrichtungskosten - 1,5% des Kaufpreises zuzüglich 20% Ust. und zuzüglich Barauslagen Depot (€ 500,--)
* Abwicklung und Treuhandschaft - 0,5 % des Kaufpreises zuzüglich 20% Ust.
* die bei etwaiger Aufnahme eines Darlehens verbundenen Spesen und Gebühren (je nach Bank) uns sonstige Nebenkosten

trägt der Käufer.

Zum Vertragsverfasser und Treuhänder und für die rechtliche Kaufabwicklung wird einvernehmlich die Rechtsanwaltskanzlei Masser & Partner, Herr Mag. Ernst Wimmer, 1010 Wien, Singerstrasse 27 bestellt.

In Geschäftskontakten mit Konsumenten ist die beiliegende Nebenkostenübersicht (Nebenkostenübersicht und weitere Informationen gem. § 30 b KSchG) Vertragsbestandteil. Gemäß § 6 Abs. 4 Maklergesetz weisen wir auf ein wirtschaftliches Naheverhältnis mit dem Eigentümer hin. Ebenso sind wir als Doppelmakler tätig. 

Wir bitten um Verständnis, dass wir aufgrund der Nachweispflicht gegenüber dem Eigentümer nur Anfragen mit vollständiger Angabe der Anschrift und Telefon-/Mobilnummer bearbeiten können.

Dieses Angebot ist unverbindlich und freibleibend. Die Angaben erfolgen aufgrund der Informationen und Unterlagen, die uns vom Eigentümer und/oder Dritten zur Verfügung gestellt wurden.

Für Rückfragen und Besichtigung steht Ihnen Frau Maryam Schubert unter der Rufnummer 0699 1 50 1 57 58 [tel:069915015758] gern zur Verfügung.

WIR VERBINDEN MENSCHEN MIT WERTEN!
 

Lage

Die dargestellte Position der Immobilie ist nur eine ungefähre Angabe.

Ihr R&P Ansprechpartner

Frau Maryam Schubert
Immobilienmaklerin

Immobilien-Bilder

Titelbild
Bild
Bild
Bild
Bild
Bild
Bild
Bild
Bild
Bild
Bild
Bild
Bild
Bild
Bild
Bild
Bild
Ansicht Gebäude
Bild

Grundrisse

Grundriss

Grundrisse

Grundriss
Drucken