Altbaueigentumswohnung in generalsaniertem Altbau „gewidmet für dauerhafte Kurzzeitvermietung (z.B. AirBnB)“
Objektnummer 1624/30007
Postleitzahl: 1150
Stadt: Wien
Objektbeschreibung
Beschreibung
DAS PROJEKT:
Das Projekt "AKKONPLATZ" befindet sich in einem historischen Gebäude, das in den Jahren 1913 bis 1914 vom Architekten August Ribak in spätsecessionistischem Stil errichtet wurde.
Es entstehen 22 Wohneinheiten, die fast alle über Freiflächen (Garten/Balkon/Terrasse) verfügen. Weiters wird die Liegenschaft generalsaniert.
Die 22 Wohnungen teilen sich wie folgt auf:
* 10 generalsanierte Altbauwohnungen für Endnutzer bzw. Anleger
* 7 generalsanierte Altbauwohnungen mit Widmung “Kurzzeitvermietung” (z.B.: für AirBNB)
* 5 Dachgeschosswohnungen in Massivbauweise
Die Größen der Wohnungen in Verbindung mit erstklassiger Ausstattung und Bauqualität sowie der guten Lage machen das Projekt "AKKONPLATZ 2" auch attraktiv für Anleger, die auf der Suche nach einer soliden Vorsorgewohnung sind.
Das Wohnhaus besteht aus Kellergeschoss, Erdgeschoss, drei Obergeschossen und einem Dachgeschoss. Die Geschosse sind alle mit einem behindertengerechten Personenaufzug erreichbar. Jeder Wohnung ist ein Kellerabteil zugeordnet. Ein Kinderwagen/Fahrradabstellbereich ist auf der Liegenschaft vorhanden.
Die Wohnungen werden über umweltfreundliche Luftwärmepumpen beheizt bzw. gekühlt.
DIE FAKTEN:
* Generalsanierung der Allgemeinflächen
* 37 m² bis 150 m² Wohnfläche
* 1 bis 4-Zimmer-Wohnungen
* Teilweise Balkon, Terrasse oder Garten
* Topausstattung
* behindertengerechter Personenlift
* Fahrrad/Kinderwagenabstellbereich
* Kellerabteile
* Schlüsselfertige Übergabe Frühjahr 2025
DIE AUSSTATTUNG:
* Luft-Wärmepumpe
* Alle Wohnungen mit Kühlfunktion über Kühldecken (L/W-Wärmepumpe)
* Fußbodenheizung (-kühlung)
* Großzügige Sanitärbereiche (Feinsteinzeug 60x30/60x60)
* Eichenparkettböden
* Großformatige Feinsteinzeugfliesen (Bad/WC)
* Gegensprechanlage
Wir weisen darauf hin, dass zwischen dem Vermittler und dem zu vermittelnden Dritten ein familiäres oder wirtschaftliches Naheverhältnis besteht.
Der Vermittler ist als Doppelmakler tätig.
Infrastruktur / Entfernungen
Gesundheit
Arzt <225m
Apotheke <300m
Klinik <1.175m
Krankenhaus <1.500m
Kinder & Schulen
Schule <275m
Kindergarten <300m
Universität <425m
Höhere Schule <750m
Nahversorgung
Supermarkt <125m
Bäckerei <300m
Einkaufszentrum <525m
Sonstige
Geldautomat <325m
Bank <375m
Post <375m
Polizei <575m
Verkehr
Bus <50m
U-Bahn <325m
Straßenbahn <300m
Bahnhof <325m
Autobahnanschluss <4.875m
Angaben Entfernung Luftlinie / Quelle: OpenStreetMap
Sonstige Informationen
WIR DANKEN IHNEN FÜR IHR INTERESSE!
Gerne stehen wir Ihnen für Auskünfte und Besichtigungen zur Verfügung. Beratung und Besichtigungen sind selbstverständlich KOSTENLOS und UNVERBINDLICH. Nur bei Zustandekommen eines Rechtsgeschäftes (Kaufvertrag) wird ein Honorar laut Maklerverordnung in Rechnung gestellt (3 % vom Kaufpreis zzgl. 20 % USt).
WIR FREUEN UNS AUF IHRE KONTAKTAUFNAHME!
-------------------------
IHRE SICHERHEIT IST UNS EIN ANLIEGEN!
Für die kaufvertragliche Abwicklung und Treuhandschaft ist die Rechtsanwaltskanzlei Dr. Karl Schön, 1080 Wien, Wickenburggasse 3/9 bestellt. Die Kosten für die Errichtung und Durchführung des Kaufvertrages inkl. WE- Begründung und Treuhandschaften betragen 2% vom Kaufpreis zzgl. USt. plus Barauslagen. Bitte kalkulieren Sie zusätzlich zum Kaufpreis noch 3,5% Grunderwerbsteuer und 1,1% Eintragungsgebühr sowie etwaige Finanzierungskosten.
In Geschäftskontakten mit Konsumenten ist die beiliegende Nebenkostenübersicht (Nebenkostenübersicht und weitere Informationen gem. § 30 b KSchG) Vertragsbestandteil. Gemäß § 6 Abs. 4 Maklergesetz weisen wir auf ein wirtschaftliches Naheverhältnis mit dem Eigentümer hin. Ebenso sind wir als Doppelmakler tätig. Dieses Angebot ist unverbindlich und freibleibend. Die Angaben erfolgen aufgrund der Informationen und Unterlagen, die uns vom Eigentümer und/oder Dritten zur Verfügung gestellt wurden.
IHR ANSPRECHPARTNER:
Für Rückfragen steht Ihnen unter den Rufnummern
+43 1 526 94 74 DW 24 BZW. +43 699 15 01 57 58
sowie unter der E-Mail-Adresse SCHUBERT@RPIMMO.AT
unsere FRAU MARYAM SCHUBERT jederzeit gerne zur Verfügung.
Lage
Die sehr attraktive Lage besticht durch ihre unmittelbare Nähe zum aufstrebenden Viertel rund um den MEISELMARKT. Ebenso ist eine perfekte Nahversorgung (BILLA, EUROSPAR, DM, MEISELMARKT, APOTHEKE, Citybaumarkt etc.) und Bildungseinrichtungen gegeben.
Weiters befindet sich die Liegenschaft unweit des Naherholungsgebietes "AUF DER SCHMELZ" mit seiner Parkanlage, seinem Kinderspielplatz und dem Schutzhaus.
Ebenso ist die WIENER STADTHALLE als Veranstaltungszentrum (Events, Konzerte, Sportveranstaltungen) und Sportstätte (Hallenbad, Eishalle) leicht zu erreichen.
VERKEHRSVERBINDUNGEN:
Das Projekt " AKKONPLATZ 2" zeichnet sich durch seine ideale Verkehrsanbindung aus. Durch die nahe Anbindung an die U-Bahn U3 und die Straßenbahnlinien 49 und 10 ist man mit den öffentlichen Linien sowohl schnell im Grünen als auch autofrei in der Innenstadt.
U-BAHN STATIONEN:
U 3 - Johnstraße (Meiselmarkt)
U 3 - Hütteldorfer Straße
STRASSENBAHNLINIEN:
Linie 49 (Volkstheater, Burggarten, Museen)
Linie 10 (Schloss und Tierpark Schönbrunn)
BUSLINIEN:
Linie 10 A und 12 A
Eckdaten
-
Objekt ID1624/30007
-
ObjekttypenEtagenwohnung, Wohnung
-
Adresse(Meiselmarkt)
1150 Wien
Wien -
Etage1
-
Etagenanzahl im Haus5
-
Wohnungsnummer9
-
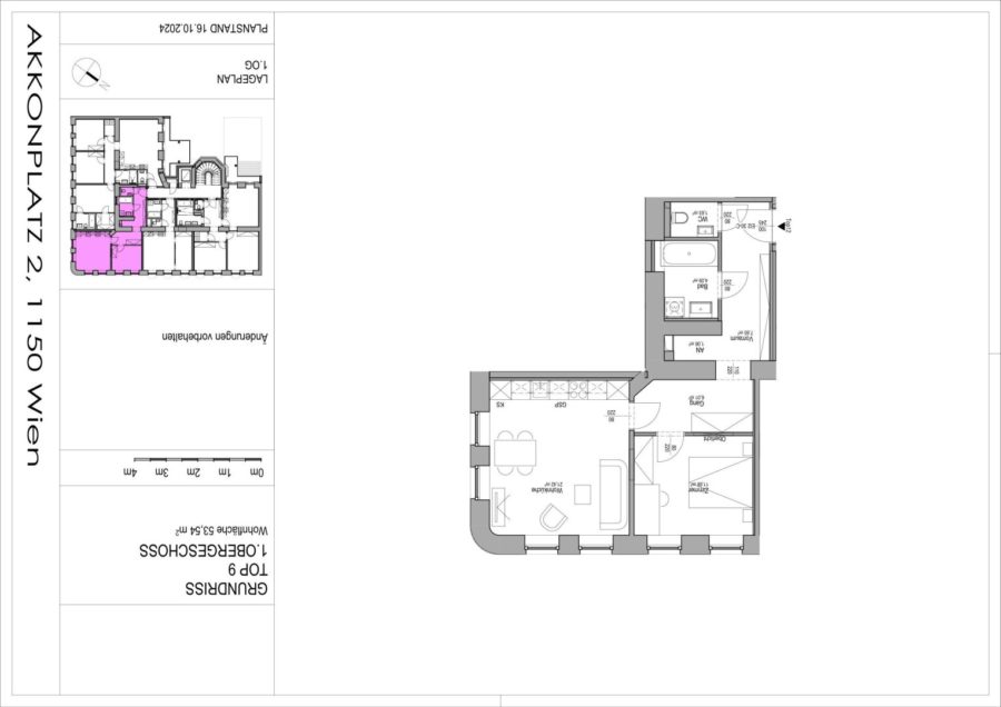
Wohnfläche ca.54 m²
-
Kellerfläche ca.2 m²
-
Zimmer2
-
Badezimmer1
-
Separate WC1
-
HeizartLuftwärmepumpe, Fußbodenheizung
-
Baujahr1900
-
ZustandErstbezug
-
HWB-Wert70
-
HWB-KlasseC
-
fGEE-Wert1.15
-
fGEE-KlasseC
-
Verfügbar absofort
-
Käuferprovision3% des Kaufpreises zzgl. 20% USt. inkl. MwSt.
-
Kaufpreis brutto375.000,00 EUR
-
Monatliche Kosten netto172,19 EUR
-
Monatliche Kosten brutto190,07 EUR
-
Sonstige Kosten netto41,42 EUR
-
Sonstige PreisangabenBei den monatlichen Kosten handelt es sich um eine Schätzung pro m² WNF und ist somit ohne Gewähr.
-
Heizkosten netto34,56 EUR zzgl. USt.: 6.91 EUR
-
Betriebskosten (netto)96,21 EUR zzgl. USt.: 9.62 EUR
-
Kaufpreis375.000 EUR
Ausstattung / Merkmale
Altbau
Badewanne
Fliesenboden
Kabel-/Sat-TV
Klimatisiert
Parkettboden
Personenaufzug
Separates WC
Die dargestellte Position der Immobilie ist nur eine ungefähre Angabe.
Energieausweis
Ihr R&P Ansprechpartner
Ihr Kontakt zur
Wunschimmobilie
- Immobilienvermittlung
- Immobilienentwicklung
- Baumanagement
Strozzigasse 2/DG, 1080 Wien