4-Zimmer-Dachgeschosswohnung (Massivbauweise) mit Terrassen in generalsaniertem Altbau

Objektnummer 1624/300168

Postleitzahl: 1150

Stadt: Wien

Objekt­beschreibung

Beschreibung

 

DAS PROJEKT:

Das Projekt "AKKONPLATZ" befindet sich in einem historischen Gebäude, das in den Jahren 1913 bis 1914 vom Architekten August Ribak in spätsecessionistischem Stil errichtet wurde.

Es entstehen 22 Wohneinheiten, die fast alle über Freiflächen (Garten/Balkon/Terrasse) verfügen. Weiters wird die Liegenschaft generalsaniert.

Die 22 Wohnungen teilen sich wie folgt auf:

* 10 generalsanierte Altbauwohnungen für Endnutzer bzw. Anleger
* 7 generalsanierte Altbauwohnungen mit Widmung “Kurzzeitvermietung” (z.B.: für AirBNB)
* 5 Dachgeschosswohnungen in Massivbauweise

Die Größen der Wohnungen in Verbindung mit erstklassiger Ausstattung und Bauqualität sowie der guten Lage machen das Projekt "AKKONPLATZ 2" auch attraktiv für Anleger, die auf der Suche nach einer soliden Vorsorgewohnung sind.

Das Wohnhaus besteht aus Kellergeschoss, Erdgeschoss, drei Obergeschossen und einem Dachgeschoss. Die Geschosse sind alle mit einem behindertengerechten Personenaufzug erreichbar. Jeder Wohnung ist ein Kellerabteil zugeordnet. Ein Kinderwagen/Fahrradabstellbereich ist auf der Liegenschaft vorhanden.

Die Wohnungen werden über umweltfreundliche Luftwärmepumpen beheizt bzw. gekühlt.

DIE FAKTEN:

* Generalsanierung der Allgemeinflächen
* 37 m² bis 150 m² Wohnfläche
* 1 bis 4-Zimmer-Wohnungen
* Teilweise Balkon, Terrasse oder Garten
* Topausstattung
* behindertengerechter Personenlift
* Fahrrad/Kinderwagenabstellbereich
* Kellerabteile
* Schlüsselfertige Übergabe Frühjahr 2025

DIE AUSSTATTUNG:

* Luft-Wärmepumpe
* Alle Wohnungen mit Kühlfunktion über Kühldecken (L/W-Wärmepumpe)
* Fußbodenheizung (-kühlung)
* Großzügige Sanitärbereiche (Feinsteinzeug 60x30/60x60)
* Eichenparkettböden
* Großformatige Feinsteinzeugfliesen (Bad/WC)
* Gegensprechanlage

 

 

Infrastruktur / Entfernungen

Gesundheit
Arzt <100m Apotheke <300m Klinik <1.025m Krankenhaus <1.500m Kinder & Schulen Schule <275m Kindergarten <300m Universität <425m Höhere Schule <750m Nahversorgung Supermarkt <125m Bäckerei <300m Einkaufszentrum <525m Sonstige Geldautomat <325m Bank <375m Post <350m Polizei <575m Verkehr Bus <50m U-Bahn <325m Straßenbahn <300m Bahnhof <325m Autobahnanschluss <4.875m Angaben Entfernung Luftlinie / Quelle: OpenStreetMap

Sonstige Informationen

 

WIR DANKEN IHNEN FÜR IHR INTERESSE!

Gerne stehen wir Ihnen für Auskünfte und Besichtigungen zur Verfügung. Beratung und Besichtigungen sind selbstverständlich KOSTENLOS und UNVERBINDLICH. Nur bei Zustandekommen eines Rechtsgeschäftes (Kaufvertrag) wird ein Honorar laut Maklerverordnung in Rechnung gestellt (3 % vom Kaufpreis zzgl. 20 % USt).

WIR FREUEN UNS AUF IHRE KONTAKTAUFNAHME!

-------------------------

 

IHRE SICHERHEIT IST UNS EIN ANLIEGEN!

Für die kaufvertragliche Abwicklung und Treuhandschaft ist die Rechtsanwaltskanzlei Dr. Karl Schön, 1080 Wien, Wickenburggasse 3/9 bestellt. Die Kosten für die Errichtung und Durchführung des Kaufvertrages inkl. WE- Begründung und Treuhandschaften betragen 2% vom Kaufpreis zzgl. USt. plus Barauslagen. Bitte kalkulieren Sie zusätzlich zum Kaufpreis noch 3,5% Grunderwerbsteuer und 1,1% Eintragungsgebühr sowie etwaige Finanzierungskosten.

In Geschäftskontakten mit Konsumenten ist die beiliegende Nebenkostenübersicht (Nebenkostenübersicht und weitere Informationen gem. § 30 b KSchG) Vertragsbestandteil. Gemäß § 6 Abs. 4 Maklergesetz weisen wir auf ein wirtschaftliches Naheverhältnis mit dem Eigentümer hin. Ebenso sind wir als Doppelmakler tätig. Dieses Angebot ist unverbindlich und freibleibend. Die Angaben erfolgen aufgrund der Informationen und Unterlagen, die uns vom Eigentümer und/oder Dritten zur Verfügung gestellt wurden.

IHR ANSPRECHPARTNER:

Für Rückfragen steht Ihnen unter den Rufnummern

+43 1 526 94 74 DW 24 BZW. +43 699 15 01 57 58

sowie unter der E-Mail-Adresse SCHUBERT@RPIMMO.AT

unsere FRAU MARYAM SCHUBERT  jederzeit gerne zur Verfügung.

Lage

Die sehr attraktive Lage besticht durch ihre unmittelbare Nähe zum aufstrebenden Viertel rund um den MEISELMARKT. Ebenso ist eine perfekte Nahversorgung (BILLA, EUROSPAR, DM, MEISELMARKT, APOTHEKE, Citybaumarkt etc.) und Bildungseinrichtungen gegeben.

Weiters befindet sich die Liegenschaft unweit des Naherholungsgebietes "AUF DER SCHMELZ" mit seiner Parkanlage, seinem Kinderspielplatz und dem Schutzhaus.

Ebenso ist die WIENER STADTHALLE als Veranstaltungszentrum (Events, Konzerte, Sportveranstaltungen) und Sportstätte (Hallenbad, Eishalle) leicht zu erreichen.

VERKEHRSVERBINDUNGEN:

Das Projekt " AKKONPLATZ 2" zeichnet sich durch seine ideale Verkehrsanbindung aus. Durch die nahe Anbindung an die U-Bahn U3 und die Straßenbahnlinien 49 und 10 ist man mit den öffentlichen Linien sowohl schnell im Grünen als auch autofrei in der Innenstadt.

U-BAHN STATIONEN:
U 3 - Johnstraße (Meiselmarkt)
U 3 - Hütteldorfer Straße

STRASSENBAHNLINIEN:
Linie 49 (Volkstheater, Burggarten, Museen)
Linie 10 (Schloss und Tierpark Schönbrunn)

BUSLINIEN:
Linie 10 A und 12 A

Eckdaten

  • Objekt ID
    1624/300168
  • Objekttypen
    Dachgeschosswohnung, Wohnung
  • Adresse
    (Meiselmarkt)
    1150 Wien
    Wien
  • Etage
    4
  • Etagenanzahl im Haus
    5
  • Wohnungsnummer
    24
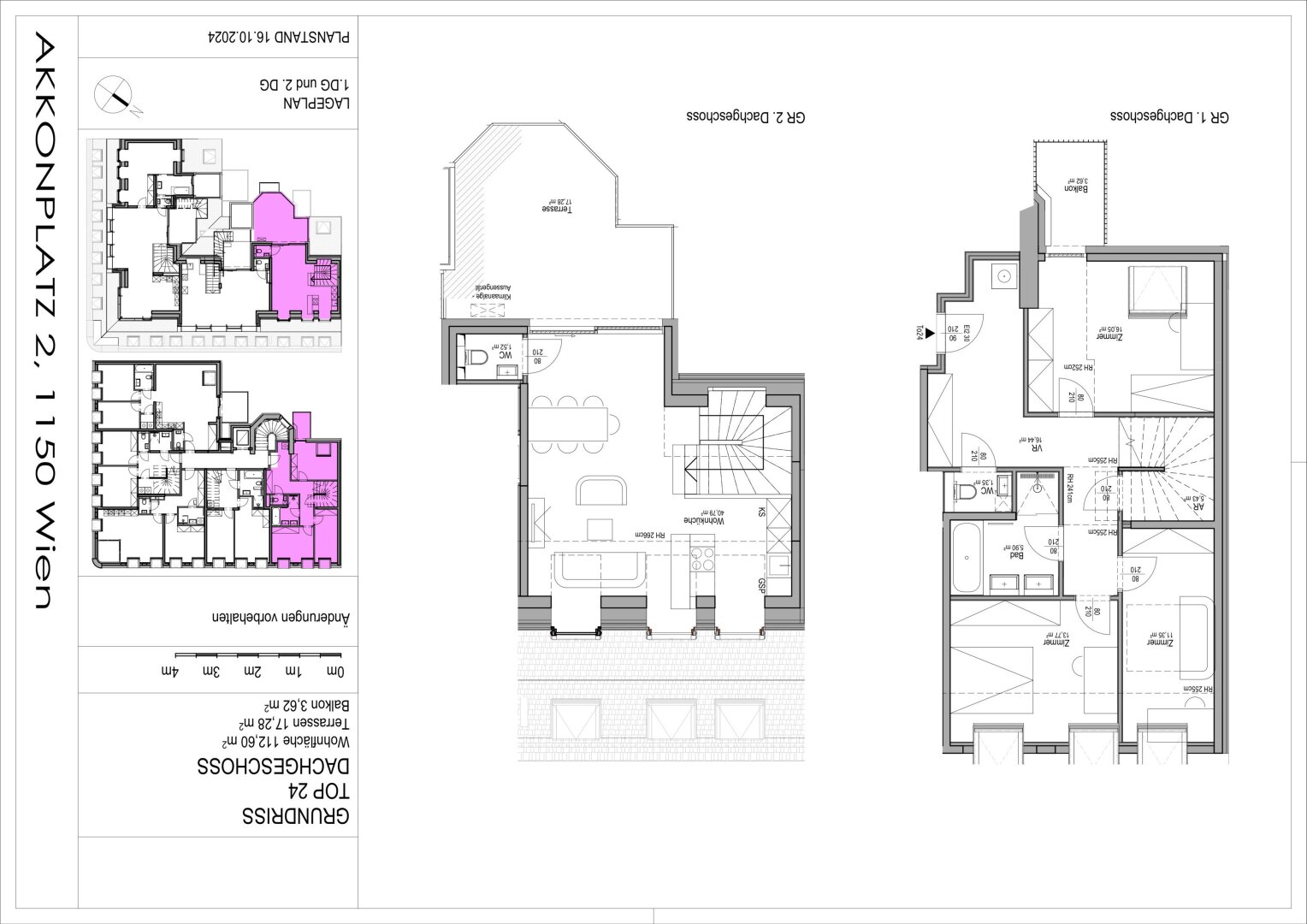
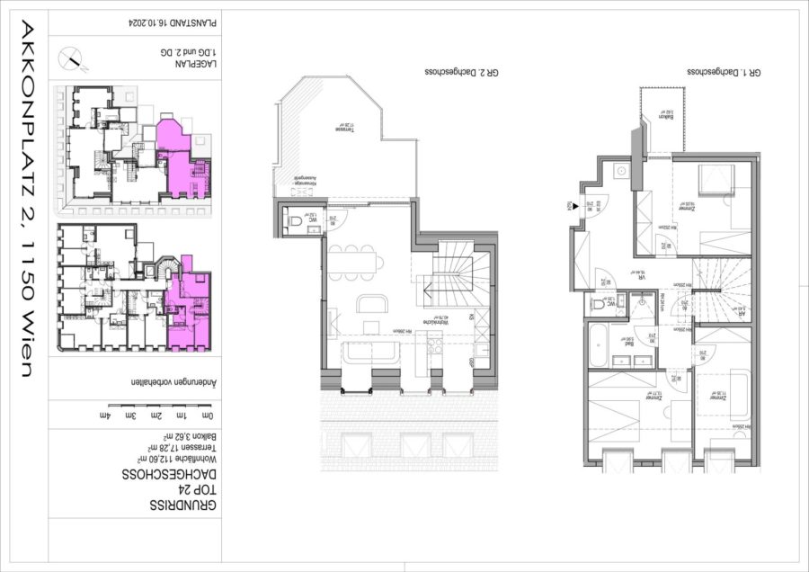
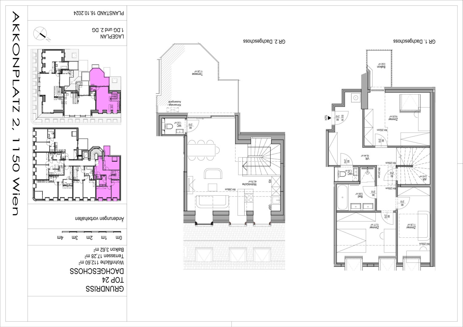
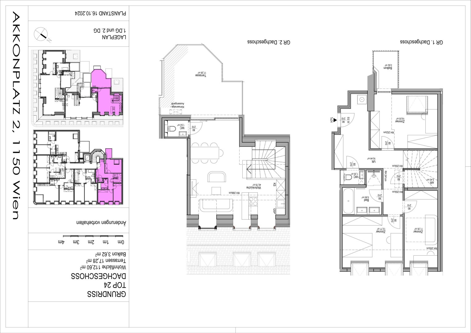
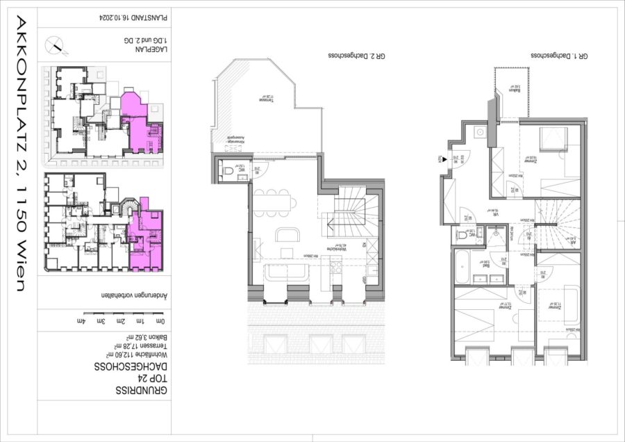
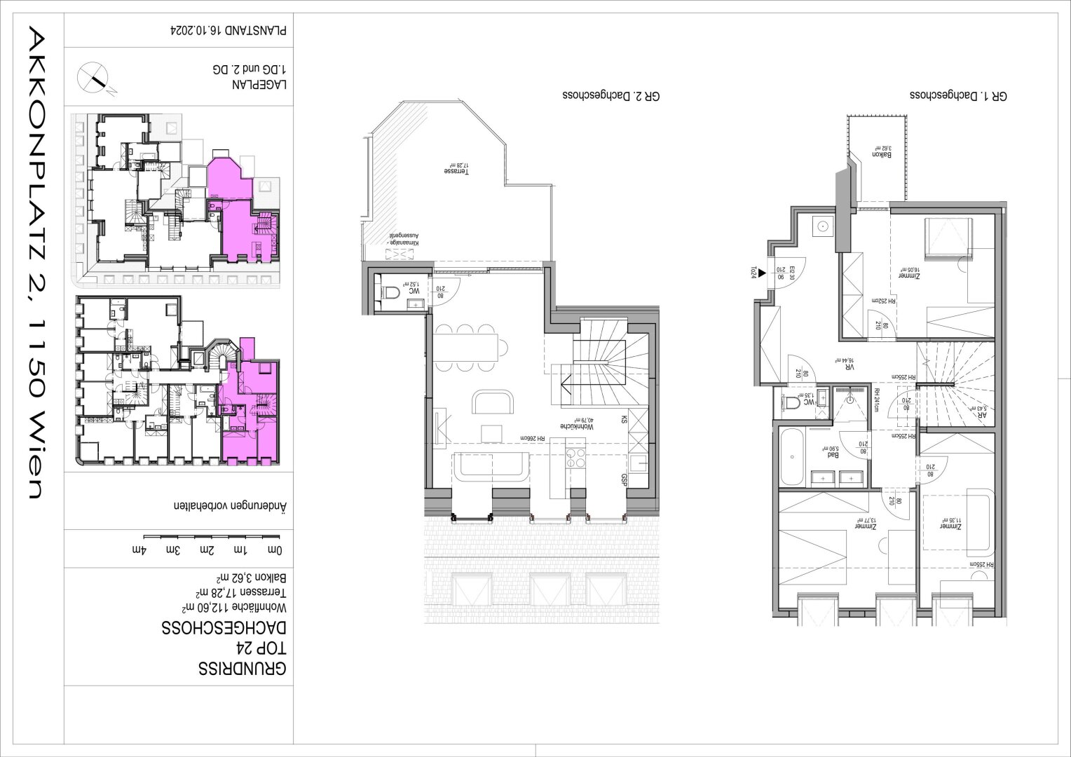
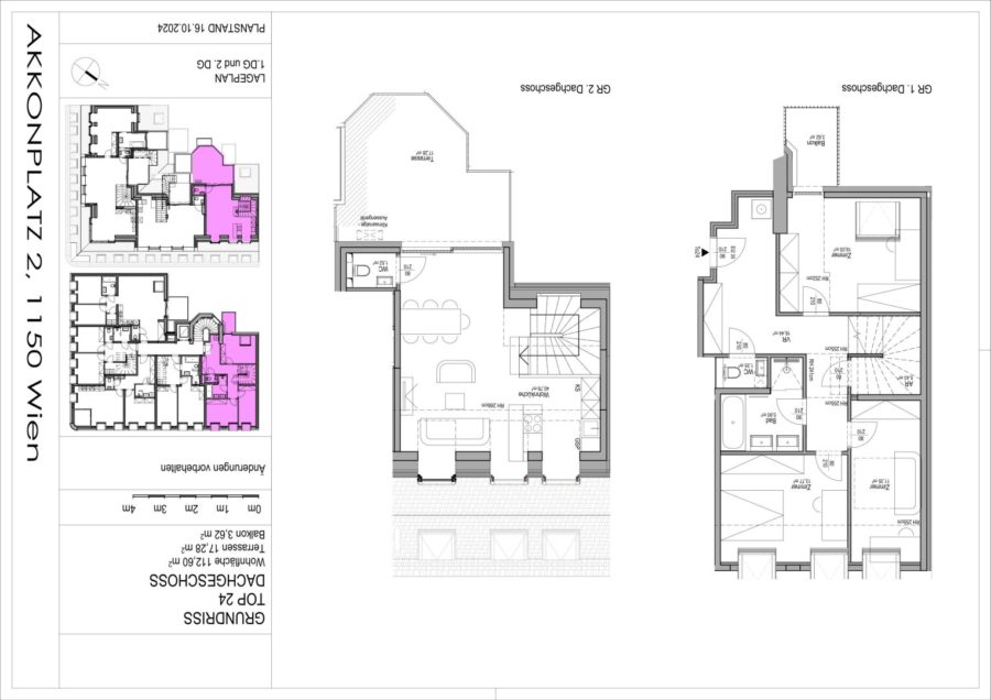
  • Wohnfläche ca.
    113 m²
  • Kellerfläche ca.
    2 m²
  • Balkon-/Terrassen­fläche ca.
    21 m²
  • Zimmer
    4
  • Badezimmer
    1
  • Separate WC
    2
  • Balkone
    1
  • Terrassen
    1
  • Heizart
    Luftwärmepumpe, Fußbodenheizung
  • Baujahr
    1900
  • Zustand
    Erstbezug
  • Bauweise
    Massiv
  • HWB-Wert
    35.6
  • HWB-Klasse
    A
  • fGEE-Wert
    0.65
  • fGEE-Klasse
    A+
  • Verfügbar ab
    sofort
  • Käufer­provision
    3% des Kaufpreises zzgl. 20% USt. inkl. MwSt.
  • Kaufpreis brutto
    984.000,00 EUR
  • Monatliche Kosten netto
    370,02 EUR
  • Monatliche Kosten brutto
    407,63 EUR
  • Sonstige Kosten netto
    95,00 EUR
  • Sonstige Preisangaben
    Bei den monatlichen Kosten handelt es sich um eine Schätzung pro m² WNF und ist somit ohne Gewähr.
  • Heizkosten netto
    72,69 EUR zzgl. USt.: 14.54 EUR
  • Betriebskosten (netto)
    202,33 EUR zzgl. USt.: 20.23 EUR
  • Kaufpreis
    984.000 EUR

Ausstattung / Merkmale

  • Altbau
  • Badewanne
  • Balkon
  • Dusche
  • Fliesenboden
  • Kabel-/Sat-TV
  • Klimatisiert
  • Massivbauweise
  • Parkettboden
  • Personenaufzug
  • Separates WC
  • Terrasse

Die dargestellte Position der Immobilie ist nur eine ungefähre Angabe.

Energieausweis

HWB SK 35,60 0,65 f GEE A++ A+ A B C D E F G A+ A

Ihr R&P Ansprechpartner

Frau Maryam Schubert
Immobilienmaklerin

Direktanfrage

 SSL-verschlüsselt

Ihr Kontakt zur
Wunschimmobilie

  • Immobilienvermittlung
  • Immobilienentwicklung
  • Baumanagement
Rainer & Partner Immobilien
Strozzigasse 2/DG, 1080 Wien
Immobiliendaten-Import und Darstellung für WordPress: WP-ImmoMakler®